Zastanawiasz się, jak działa kurtyna?
Jak działa kurtyna?
Sprawdź teraz →towar niedostępny
dodaj do przechowalni
zapytaj o produkt
poleć znajomemu
Masz jakieś pytania?
Skontaktuj się z nami
660 096 221
Opis
Parametry techniczne
- nadmuch - 2300m3/h
- moc grzewcza - 10/20/30kW
- przyrost temperatury powietrza w nagrzewnicy - o 39 stopni
- zasilanie - 3x400V/50Hz
- maks. pobór prądu - 29,5A
- głośność - 55dB(A) (niższy/wyższy bieg nadmuchu)
- wymiary zewnętrzne - 48 x 58 x 55cm (szer. x wys. x głęb.)
- szczelność elektryczna - IP44
- gwarancja - 60 miesięcy
Wysokiej jakości i trwałości profesjonalna nagrzewnica elektryczna przemysłowa wisząca ścienna w obudowie stalowej cynkowanej i malowanej proszkowo na biało.
Idealna nagrzewnica elektryczna do ogrzewania średnich i dużych powierzchni sklepów, ogrzewania magazynów, garaży, warsztatów i ogrzewania hal przemysłowych.
Jej niezaprzeczalną zaletą jest stosunkowo niewysoki poziom głośności - maks. 55dB(A) na najwyższym biegu wentylatora - co wpływa na komfort akustyczny użytkowników oraz dobra szczelność pyłowo-wilgociowa - IP44.
Wyposażona w wydajny i sprawny energetycznie wentylator osiowy niemieckiej marki ZIEHL-ABEGG oraz grzałki elektryczne ze stali kwasoodpornej.
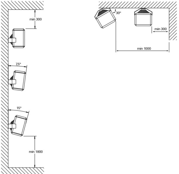
Nagrzewnica elektryczna PANTHER PNT30 FRICO dostarczana jest w komplecie ze wspornikiem montażowym ściennym o nastawnym kącie nachylenia w kierunku strefy przebywania ludzi w zakresie 7,5-15 stopni oraz możliwości montażu pod kątem 30 stopni od ściany w płaszczyźnie poziomej (na boki):

Obsługa i sterowanie (wyposażenie dodatkowe - por. produkty powiązane)
Jeden sterownik PP31 może obsłużyć do 6 nagrzewnic jednocześnie.
Koszty dostawy
Cena nie zawiera ewentualnych kosztów płatności